ЖК «Полис ЛАВрики»

Мурино п., Ручьёвский пр-кт
Девяткино 14 Минут транспортом
Квартиры
Ипотека
Описание
Инфраструктура
Ход строительства
ЖК «Полис ЛАВрики» - фото №1 ЖК «Полис ЛАВрики» - фото №2 ЖК «Полис ЛАВрики» - фото №3 ЖК «Полис ЛАВрики» - фото №4 ЖК «Полис ЛАВрики» - фото №5 ЖК «Полис ЛАВрики» - фото №6
Комплекс сдан
Об обьекте
Класс жилья
Комфорт
Квартиры
от 23 до 52 м²
Цена
от 4.5 млн до 10.1 млн ₽
Тип дома
Кирпич + Монолит
Отделка
Подчистовая, Чистовая
Срок сдачи:
- 1 очередь
Сдан
- 2 очередь
Сдан
Застройщик: Полис Групп
7 сдан
Получите консультацию специалиста отдела продаж в ЖК «Полис ЛАВрики»
Оставьте заявку, чтобы узнать об индивидуальных предложениях, акциях, доступных планировках и получить расчет вариантов оплаты.
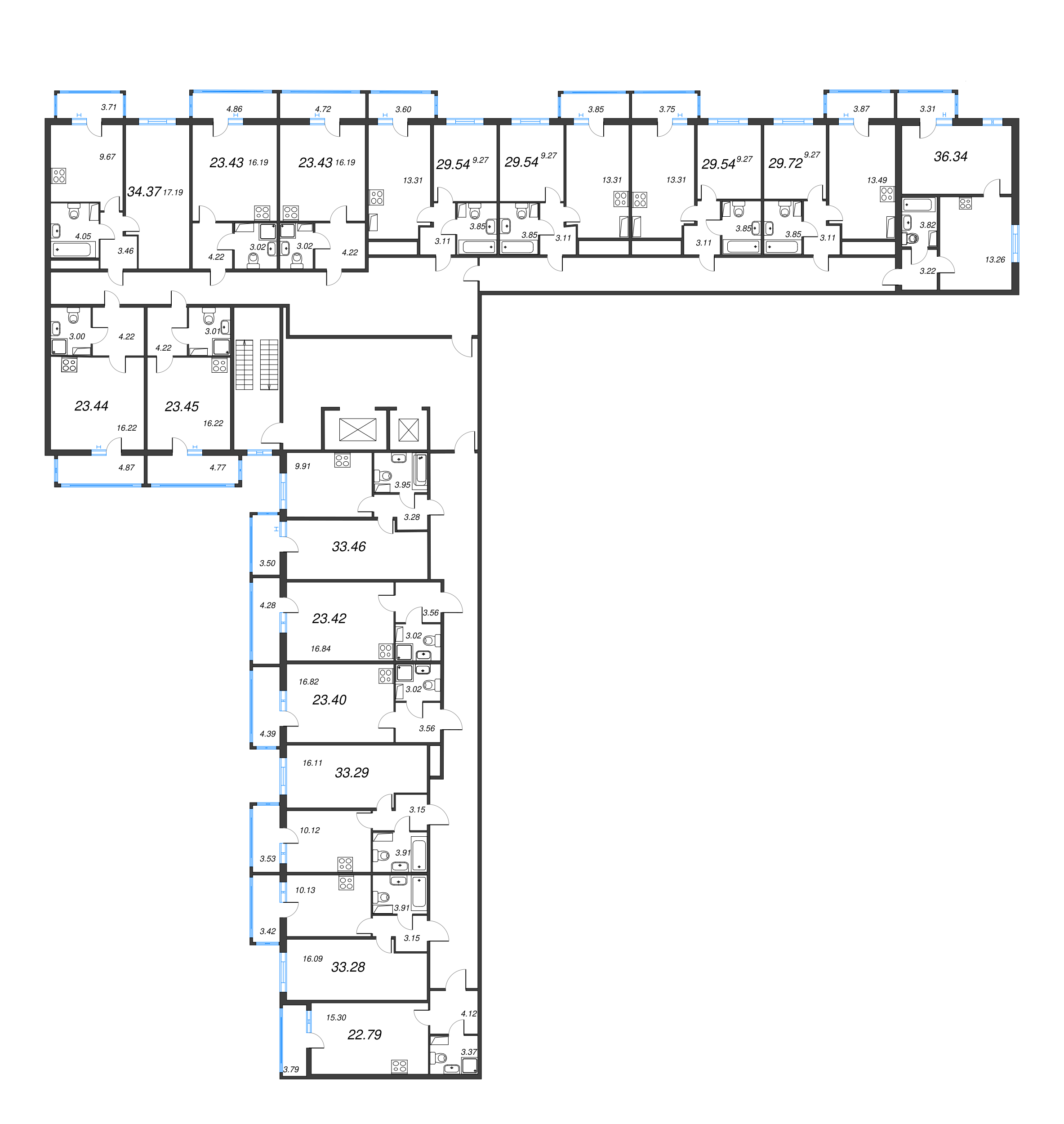
Планировка
Корпус
Этаж
S общ.
S кух.
Отделка
Тип
Стоимость
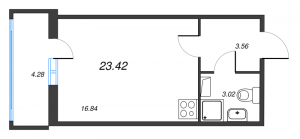
Планировка
планировка, фото №1
планировка, фото №1
Корпус
1
Этаж
10 из 12
S общ.
23.42 м²
S кух.
-
Отделка
Подчистовая
Тип
Новостройка
Стоимость
Планировка
планировка, фото №1
планировка, фото №1
Корпус
1
Этаж
12 из 12
S общ.
23.41 м²
S кух.
-
Отделка
Подчистовая
Тип
Новостройка
Стоимость
Планировка
планировка, фото №1
планировка, фото №1
Корпус
1
Этаж
12 из 12
S общ.
22.89 м²
S кух.
-
Отделка
Подчистовая
Тип
Новостройка
Стоимость
Планировка
планировка, фото №1
планировка, фото №1
Корпус
1
Этаж
12 из 12
S общ.
22.89 м²
S кух.
-
Отделка
Подчистовая
Тип
Новостройка
Стоимость
Планировка
планировка, фото №1
планировка, фото №1
Корпус
1
Этаж
5 из 12
S общ.
23.66 м²
S кух.
-
Отделка
Подчистовая
Тип
Новостройка
Стоимость
Планировка
планировка, фото №1
планировка, фото №1
Корпус
1
Этаж
3 из 12
S общ.
23.66 м²
S кух.
-
Отделка
Подчистовая
Тип
Новостройка
Стоимость
Планировка
планировка, фото №1
планировка, фото №1
Корпус
1
Этаж
10 из 12
S общ.
23.66 м²
S кух.
-
Отделка
Подчистовая
Тип
Новостройка
Стоимость
Планировка
планировка, фото №1
планировка, фото №1
Корпус
1
Этаж
12 из 12
S общ.
22.99 м²
S кух.
-
Отделка
Подчистовая
Тип
Новостройка
Стоимость
Планировка
планировка, фото №1
планировка, фото №1
Корпус
1
Этаж
12 из 12
S общ.
23.6 м²
S кух.
-
Отделка
Подчистовая
Тип
Новостройка
Стоимость
Планировка
планировка, фото №1
планировка, фото №1
Корпус
1
Этаж
12 из 12
S общ.
23.42 м²
S кух.
-
Отделка
Подчистовая
Тип
Новостройка
Стоимость
Планировка
планировка, фото №1
планировка, фото №1
Корпус
1
Этаж
12 из 12
S общ.
23.43 м²
S кух.
-
Отделка
Подчистовая
Тип
Новостройка
Стоимость
Планировка
планировка, фото №1
планировка, фото №1
Корпус
1
Этаж
12 из 12
S общ.
23.66 м²
S кух.
-
Отделка
Подчистовая
Тип
Новостройка
Стоимость
Планировка
планировка, фото №1
планировка, фото №1
Корпус
1
Этаж
12 из 12
S общ.
23.58 м²
S кух.
-
Отделка
Подчистовая
Тип
Новостройка
Стоимость
Планировка
планировка, фото №1
планировка, фото №1
Корпус
1
Этаж
6 из 12
S общ.
23.43 м²
S кух.
-
Отделка
Подчистовая
Тип
Новостройка
Стоимость
Планировка
планировка, фото №1
планировка, фото №1
Корпус
1
Этаж
9 из 12
S общ.
23.43 м²
S кух.
-
Отделка
Подчистовая
Тип
Новостройка
Стоимость
Планировка
планировка, фото №1
планировка, фото №1
Корпус
1
Этаж
6 из 12
S общ.
23.66 м²
S кух.
-
Отделка
Подчистовая
Тип
Новостройка
Стоимость
Планировка
планировка, фото №1
планировка, фото №1
Корпус
1
Этаж
11 из 12
S общ.
23.66 м²
S кух.
-
Отделка
Подчистовая
Тип
Новостройка
Стоимость
Планировка
планировка, фото №1
планировка, фото №1
Корпус
1
Этаж
12 из 12
S общ.
23.43 м²
S кух.
-
Отделка
Подчистовая
Тип
Новостройка
Стоимость
Планировка
планировка, фото №1
планировка, фото №1
Корпус
1
Этаж
10 из 12
S общ.
22.8 м²
S кух.
-
Отделка
Чистовая
Тип
Новостройка
Стоимость
Планировка
планировка, фото №1
планировка, фото №1
Корпус
1
Этаж
9 из 12
S общ.
22.87 м²
S кух.
-
Отделка
Чистовая
Тип
Новостройка
Стоимость
Планировка
Корпус
Этаж
S общ.
S кух.
Отделка
Тип
Стоимость
Планировка
планировка, фото №1
планировка, фото №1
Корпус
1
Этаж
12 из 12
S общ.
32.11 м²
S кух.
14.8 м²
Отделка
Подчистовая
Тип
Новостройка
Стоимость
Планировка
планировка, фото №1
планировка, фото №1
Корпус
1
Этаж
6 из 12
S общ.
33.41 м²
S кух.
9.7 м²
Отделка
Подчистовая
Тип
Новостройка
Стоимость
Планировка
планировка, фото №1
планировка, фото №1
Корпус
1
Этаж
10 из 12
S общ.
32.11 м²
S кух.
14.8 м²
Отделка
Подчистовая
Тип
Новостройка
Стоимость
Планировка
планировка, фото №1
планировка, фото №1
Корпус
1
Этаж
8 из 12
S общ.
33.9 м²
S кух.
10.65 м²
Отделка
Подчистовая
Тип
Новостройка
Стоимость
Планировка
планировка, фото №1
планировка, фото №1
Корпус
1
Этаж
5 из 12
S общ.
34.1 м²
S кух.
9.65 м²
Отделка
Подчистовая
Тип
Новостройка
Стоимость
Планировка
планировка, фото №1
планировка, фото №1
Корпус
1
Этаж
6 из 12
S общ.
34.23 м²
S кух.
10.1 м²
Отделка
Подчистовая
Тип
Новостройка
Стоимость
Планировка
планировка, фото №1
планировка, фото №1
Корпус
1
Этаж
5 из 12
S общ.
34.24 м²
S кух.
10.09 м²
Отделка
Подчистовая
Тип
Новостройка
Стоимость
Планировка
планировка, фото №1
планировка, фото №1
Корпус
1
Этаж
12 из 12
S общ.
33.54 м²
S кух.
10.59 м²
Отделка
Подчистовая
Тип
Новостройка
Стоимость
Планировка
планировка, фото №1
планировка, фото №1
Корпус
1
Этаж
12 из 12
S общ.
33.32 м²
S кух.
9.8 м²
Отделка
Подчистовая
Тип
Новостройка
Стоимость
Планировка
планировка, фото №1
планировка, фото №1
Корпус
1
Этаж
12 из 12
S общ.
33.4 м²
S кух.
9.7 м²
Отделка
Подчистовая
Тип
Новостройка
Стоимость
Планировка
планировка, фото №1
планировка, фото №1
Корпус
1
Этаж
12 из 12
S общ.
33.41 м²
S кух.
9.7 м²
Отделка
Подчистовая
Тип
Новостройка
Стоимость
Планировка
планировка, фото №1
планировка, фото №1
Корпус
1
Этаж
11 из 12
S общ.
31.14 м²
S кух.
12.9 м²
Отделка
Подчистовая
Тип
Новостройка
Стоимость
Планировка
планировка, фото №1
планировка, фото №1
Корпус
1
Этаж
8 из 12
S общ.
34.99 м²
S кух.
10.56 м²
Отделка
Подчистовая
Тип
Новостройка
Стоимость
Планировка
планировка, фото №1
планировка, фото №1
Корпус
1
Этаж
12 из 12
S общ.
31.14 м²
S кух.
12.9 м²
Отделка
Подчистовая
Тип
Новостройка
Стоимость
Планировка
планировка, фото №1
планировка, фото №1
Корпус
1
Этаж
5 из 12
S общ.
35.41 м²
S кух.
11.21 м²
Отделка
Подчистовая
Тип
Новостройка
Стоимость
Планировка
планировка, фото №1
планировка, фото №1
Корпус
1
Этаж
9 из 12
S общ.
36.08 м²
S кух.
11.82 м²
Отделка
Подчистовая
Тип
Новостройка
Стоимость
Планировка
планировка, фото №1
планировка, фото №1
Корпус
1
Этаж
11 из 12
S общ.
33.32 м²
S кух.
9.8 м²
Отделка
Подчистовая
Тип
Новостройка
Стоимость
Планировка
планировка, фото №1
планировка, фото №1
Корпус
1
Этаж
11 из 12
S общ.
33.4 м²
S кух.
9.7 м²
Отделка
Подчистовая
Тип
Новостройка
Стоимость
Планировка
планировка, фото №1
планировка, фото №1
Корпус
1
Этаж
6 из 12
S общ.
33.4 м²
S кух.
9.7 м²
Отделка
Подчистовая
Тип
Новостройка
Стоимость
Планировка
планировка, фото №1
планировка, фото №1
Корпус
1
Этаж
4 из 12
S общ.
33.41 м²
S кух.
9.7 м²
Отделка
Подчистовая
Тип
Новостройка
Стоимость
Планировка
Корпус
Этаж
S общ.
S кух.
Отделка
Тип
Стоимость
Планировка
планировка, фото №1
планировка, фото №1
Корпус
1
Этаж
10 из 12
S общ.
46.85 м²
S кух.
11.66 м²
Отделка
Подчистовая
Тип
Новостройка
Стоимость
Планировка
планировка, фото №1
планировка, фото №1
Корпус
1
Этаж
9 из 12
S общ.
46.85 м²
S кух.
11.66 м²
Отделка
Подчистовая
Тип
Новостройка
Стоимость
Планировка
планировка, фото №1
планировка, фото №1
Корпус
1
Этаж
11 из 12
S общ.
47.47 м²
S кух.
12.21 м²
Отделка
Подчистовая
Тип
Новостройка
Стоимость
Планировка
планировка, фото №1
планировка, фото №1
Корпус
1
Этаж
12 из 12
S общ.
47.47 м²
S кух.
12.21 м²
Отделка
Подчистовая
Тип
Новостройка
Стоимость
Планировка
Корпус
Этаж
S общ.
S кух.
Отделка
Тип
Стоимость
Планировка
планировка, фото №1
планировка, фото №1
Корпус
1
Этаж
2 из 12
S общ.
37.24 м²
S кух.
17.77 м²
Отделка
Подчистовая
Тип
Новостройка
Стоимость
Планировка
планировка, фото №1
планировка, фото №1
Корпус
1
Этаж
12 из 12
S общ.
36.23 м²
S кух.
15.53 м²
Отделка
Подчистовая
Тип
Новостройка
Стоимость
Планировка
планировка, фото №1
планировка, фото №1
Корпус
1
Этаж
11 из 12
S общ.
37.1 м²
S кух.
17.77 м²
Отделка
Подчистовая
Тип
Новостройка
Стоимость
Планировка
планировка, фото №1
планировка, фото №1
Корпус
1
Этаж
12 из 12
S общ.
37.1 м²
S кух.
17.77 м²
Отделка
Подчистовая
Тип
Новостройка
Стоимость
Планировка
планировка, фото №1
планировка, фото №1
Корпус
1
Этаж
8 из 12
S общ.
36.51 м²
S кух.
16.42 м²
Отделка
Чистовая
Тип
Новостройка
Стоимость
Планировка
планировка, фото №1
планировка, фото №1
Корпус
1
Этаж
10 из 12
S общ.
36.51 м²
S кух.
16.42 м²
Отделка
Чистовая
Тип
Новостройка
Стоимость
Планировка
планировка, фото №1
планировка, фото №1
Корпус
1
Этаж
3 из 12
S общ.
36.65 м²
S кух.
15.79 м²
Отделка
Чистовая
Тип
Новостройка
Стоимость
Планировка
планировка, фото №1
планировка, фото №1
Корпус
1
Этаж
7 из 12
S общ.
36.65 м²
S кух.
15.79 м²
Отделка
Чистовая
Тип
Новостройка
Стоимость
Планировка
планировка, фото №1
планировка, фото №1
Корпус
1
Этаж
4 из 12
S общ.
36.65 м²
S кух.
15.79 м²
Отделка
Чистовая
Тип
Новостройка
Стоимость
Планировка
планировка, фото №1
планировка, фото №1
Корпус
1
Этаж
12 из 12
S общ.
36.65 м²
S кух.
15.79 м²
Отделка
Чистовая
Тип
Новостройка
Стоимость
Планировка
Корпус
Этаж
S общ.
S кух.
Отделка
Тип
Стоимость
Планировка
планировка, фото №1
планировка, фото №1
Корпус
2
Этаж
7 из 12
S общ.
23.07 м²
S кух.
-
Отделка
Подчистовая
Тип
Новостройка
Стоимость
Планировка
планировка, фото №1
планировка, фото №1
Корпус
2
Этаж
9 из 12
S общ.
23.07 м²
S кух.
-
Отделка
Подчистовая
Тип
Новостройка
Стоимость
Планировка
планировка, фото №1
планировка, фото №1
Корпус
2
Этаж
6 из 12
S общ.
23.07 м²
S кух.
-
Отделка
Подчистовая
Тип
Новостройка
Стоимость
Планировка
планировка, фото №1
планировка, фото №1
Корпус
2
Этаж
1 из 12
S общ.
23.32 м²
S кух.
-
Отделка
Подчистовая
Тип
Новостройка
Стоимость
Планировка
планировка, фото №1
планировка, фото №1
Корпус
2
Этаж
4 из 12
S общ.
23.95 м²
S кух.
-
Отделка
Подчистовая
Тип
Новостройка
Стоимость
Планировка
планировка, фото №1
планировка, фото №1
Корпус
2
Этаж
12 из 12
S общ.
23.95 м²
S кух.
-
Отделка
Подчистовая
Тип
Новостройка
Стоимость
Планировка
планировка, фото №1
планировка, фото №1
Корпус
2
Этаж
10 из 12
S общ.
23.07 м²
S кух.
-
Отделка
Подчистовая
Тип
Новостройка
Стоимость
Планировка
планировка, фото №1
планировка, фото №1
Корпус
2
Этаж
12 из 12
S общ.
23.07 м²
S кух.
-
Отделка
Подчистовая
Тип
Новостройка
Стоимость
Планировка
планировка, фото №1
планировка, фото №1
Корпус
2
Этаж
12 из 12
S общ.
23.07 м²
S кух.
-
Отделка
Подчистовая
Тип
Новостройка
Стоимость
Планировка
планировка, фото №1
планировка, фото №1
Корпус
2
Этаж
11 из 12
S общ.
23.21 м²
S кух.
-
Отделка
Подчистовая
Тип
Новостройка
Стоимость
Планировка
планировка, фото №1
планировка, фото №1
Корпус
2
Этаж
12 из 12
S общ.
22.64 м²
S кух.
-
Отделка
Подчистовая
Тип
Новостройка
Стоимость
Планировка
планировка, фото №1
планировка, фото №1
Корпус
2
Этаж
12 из 12
S общ.
22.88 м²
S кух.
-
Отделка
Подчистовая
Тип
Новостройка
Стоимость
Планировка
планировка, фото №1
планировка, фото №1
Корпус
2
Этаж
5 из 12
S общ.
23.95 м²
S кух.
-
Отделка
Подчистовая
Тип
Новостройка
Стоимость
Планировка
планировка, фото №1
планировка, фото №1
Корпус
2
Этаж
12 из 12
S общ.
23.44 м²
S кух.
-
Отделка
Подчистовая
Тип
Новостройка
Стоимость
Планировка
планировка, фото №1
планировка, фото №1
Корпус
2
Этаж
1 из 12
S общ.
23.15 м²
S кух.
-
Отделка
Чистовая
Тип
Новостройка
Стоимость
Планировка
планировка, фото №1
планировка, фото №1
Корпус
2
Этаж
10 из 12
S общ.
23.07 м²
S кух.
-
Отделка
Чистовая
Тип
Новостройка
Стоимость
Планировка
планировка, фото №1
планировка, фото №1
Корпус
2
Этаж
9 из 12
S общ.
23.07 м²
S кух.
-
Отделка
Чистовая
Тип
Новостройка
Стоимость
Планировка
планировка, фото №1
планировка, фото №1
Корпус
2
Этаж
12 из 12
S общ.
23.07 м²
S кух.
-
Отделка
Чистовая
Тип
Новостройка
Стоимость
Планировка
планировка, фото №1
планировка, фото №1
Корпус
2
Этаж
12 из 12
S общ.
23.07 м²
S кух.
-
Отделка
Чистовая
Тип
Новостройка
Стоимость
Планировка
планировка, фото №1
планировка, фото №1
Корпус
2
Этаж
11 из 12
S общ.
23.07 м²
S кух.
-
Отделка
Чистовая
Тип
Новостройка
Стоимость
Планировка
Корпус
Этаж
S общ.
S кух.
Отделка
Тип
Стоимость
Планировка
планировка, фото №1
планировка, фото №1
Корпус
2
Этаж
8 из 12
S общ.
32.82 м²
S кух.
13.09 м²
Отделка
Подчистовая
Тип
Новостройка
Стоимость
Планировка
планировка, фото №1
планировка, фото №1
Корпус
2
Этаж
11 из 12
S общ.
32.82 м²
S кух.
13.09 м²
Отделка
Подчистовая
Тип
Новостройка
Стоимость
Планировка
планировка, фото №1
планировка, фото №1
Корпус
2
Этаж
6 из 12
S общ.
32.82 м²
S кух.
13.09 м²
Отделка
Подчистовая
Тип
Новостройка
Стоимость
Планировка
планировка, фото №1
планировка, фото №1
Корпус
2
Этаж
7 из 12
S общ.
32.82 м²
S кух.
13.09 м²
Отделка
Подчистовая
Тип
Новостройка
Стоимость
Планировка
планировка, фото №1
планировка, фото №1
Корпус
2
Этаж
2 из 12
S общ.
32.74 м²
S кух.
12.32 м²
Отделка
Подчистовая
Тип
Новостройка
Стоимость
Планировка
планировка, фото №1
планировка, фото №1
Корпус
2
Этаж
4 из 12
S общ.
32.74 м²
S кух.
12.32 м²
Отделка
Подчистовая
Тип
Новостройка
Стоимость
Планировка
планировка, фото №1
планировка, фото №1
Корпус
2
Этаж
11 из 12
S общ.
32.74 м²
S кух.
12.32 м²
Отделка
Подчистовая
Тип
Новостройка
Стоимость
Планировка
планировка, фото №1
планировка, фото №1
Корпус
2
Этаж
6 из 12
S общ.
32.49 м²
S кух.
13.78 м²
Отделка
Подчистовая
Тип
Новостройка
Стоимость
Планировка
планировка, фото №1
планировка, фото №1
Корпус
2
Этаж
5 из 12
S общ.
33.82 м²
S кух.
11.01 м²
Отделка
Подчистовая
Тип
Новостройка
Стоимость
Планировка
планировка, фото №1
планировка, фото №1
Корпус
2
Этаж
12 из 12
S общ.
29.67 м²
S кух.
13.02 м²
Отделка
Подчистовая
Тип
Новостройка
Стоимость
Планировка
планировка, фото №1
планировка, фото №1
Корпус
2
Этаж
2 из 12
S общ.
32.14 м²
S кух.
13.42 м²
Отделка
Подчистовая
Тип
Новостройка
Стоимость
Планировка
планировка, фото №1
планировка, фото №1
Корпус
2
Этаж
7 из 12
S общ.
32.14 м²
S кух.
13.42 м²
Отделка
Подчистовая
Тип
Новостройка
Стоимость
Планировка
планировка, фото №1
планировка, фото №1
Корпус
2
Этаж
12 из 12
S общ.
32.14 м²
S кух.
13.42 м²
Отделка
Подчистовая
Тип
Новостройка
Стоимость
Планировка
планировка, фото №1
планировка, фото №1
Корпус
2
Этаж
11 из 12
S общ.
32.66 м²
S кух.
9.92 м²
Отделка
Подчистовая
Тип
Новостройка
Стоимость
Планировка
планировка, фото №1
планировка, фото №1
Корпус
2
Этаж
3 из 12
S общ.
32.66 м²
S кух.
9.92 м²
Отделка
Подчистовая
Тип
Новостройка
Стоимость
Планировка
планировка, фото №1
планировка, фото №1
Корпус
2
Этаж
7 из 12
S общ.
32.66 м²
S кух.
9.92 м²
Отделка
Подчистовая
Тип
Новостройка
Стоимость
Планировка
планировка, фото №1
планировка, фото №1
Корпус
2
Этаж
4 из 12
S общ.
32.44 м²
S кух.
14.05 м²
Отделка
Подчистовая
Тип
Новостройка
Стоимость
Планировка
планировка, фото №1
планировка, фото №1
Корпус
2
Этаж
12 из 12
S общ.
32.44 м²
S кух.
14.05 м²
Отделка
Подчистовая
Тип
Новостройка
Стоимость
Планировка
планировка, фото №1
планировка, фото №1
Корпус
2
Этаж
3 из 12
S общ.
32.43 м²
S кух.
14.05 м²
Отделка
Подчистовая
Тип
Новостройка
Стоимость
Планировка
планировка, фото №1
планировка, фото №1
Корпус
2
Этаж
10 из 12
S общ.
32.44 м²
S кух.
14.05 м²
Отделка
Подчистовая
Тип
Новостройка
Стоимость
Планировка
Корпус
Этаж
S общ.
S кух.
Отделка
Тип
Стоимость
Планировка
планировка, фото №1
планировка, фото №1
Корпус
2
Этаж
1 из 12
S общ.
45.78 м²
S кух.
9.36 м²
Отделка
Подчистовая
Тип
Новостройка
Стоимость
Планировка
планировка, фото №1
планировка, фото №1
Корпус
2
Этаж
12 из 12
S общ.
44.92 м²
S кух.
9.73 м²
Отделка
Подчистовая
Тип
Новостройка
Стоимость
Планировка
планировка, фото №1
планировка, фото №1
Корпус
2
Этаж
12 из 12
S общ.
45.13 м²
S кух.
9.44 м²
Отделка
Подчистовая
Тип
Новостройка
Стоимость
Планировка
планировка, фото №1
планировка, фото №1
Корпус
2
Этаж
2 из 12
S общ.
46.61 м²
S кух.
10.72 м²
Отделка
Подчистовая
Тип
Новостройка
Стоимость
Планировка
планировка, фото №1
планировка, фото №1
Корпус
2
Этаж
4 из 12
S общ.
46.63 м²
S кух.
10.72 м²
Отделка
Подчистовая
Тип
Новостройка
Стоимость
Планировка
планировка, фото №1
планировка, фото №1
Корпус
2
Этаж
5 из 12
S общ.
48.26 м²
S кух.
12.7 м²
Отделка
Подчистовая
Тип
Новостройка
Стоимость
Планировка
планировка, фото №1
планировка, фото №1
Корпус
2
Этаж
12 из 12
S общ.
48.26 м²
S кух.
12.7 м²
Отделка
Подчистовая
Тип
Новостройка
Стоимость
Планировка
планировка, фото №1
планировка, фото №1
Корпус
2
Этаж
12 из 12
S общ.
48.39 м²
S кух.
14.38 м²
Отделка
Подчистовая
Тип
Новостройка
Стоимость
Планировка
планировка, фото №1
планировка, фото №1
Корпус
2
Этаж
11 из 12
S общ.
52.21 м²
S кух.
12.2 м²
Отделка
Подчистовая
Тип
Новостройка
Стоимость
Планировка
планировка, фото №1
планировка, фото №1
Корпус
2
Этаж
12 из 12
S общ.
52.21 м²
S кух.
12.2 м²
Отделка
Подчистовая
Тип
Новостройка
Стоимость
Планировка
Корпус
Этаж
S общ.
S кух.
Отделка
Тип
Стоимость
Планировка
планировка, фото №1
планировка, фото №1
Корпус
2
Этаж
2 из 12
S общ.
32.48 м²
S кух.
13.78 м²
Отделка
Подчистовая
Тип
Новостройка
Стоимость
Планировка
планировка, фото №1
планировка, фото №1
Корпус
2
Этаж
8 из 12
S общ.
38.42 м²
S кух.
16.44 м²
Отделка
Подчистовая
Тип
Новостройка
Стоимость
Планировка
планировка, фото №1
планировка, фото №1
Корпус
2
Этаж
11 из 12
S общ.
38.42 м²
S кух.
16.44 м²
Отделка
Подчистовая
Тип
Новостройка
Стоимость
Планировка
планировка, фото №1
планировка, фото №1
Корпус
2
Этаж
5 из 12
S общ.
38.42 м²
S кух.
16.44 м²
Отделка
Подчистовая
Тип
Новостройка
Стоимость
Планировка
планировка, фото №1
планировка, фото №1
Корпус
2
Этаж
6 из 12
S общ.
38.42 м²
S кух.
16.44 м²
Отделка
Подчистовая
Тип
Новостройка
Стоимость
Планировка
планировка, фото №1
планировка, фото №1
Корпус
2
Этаж
2 из 12
S общ.
38.29 м²
S кух.
19.06 м²
Отделка
Подчистовая
Тип
Новостройка
Стоимость
Планировка
планировка, фото №1
планировка, фото №1
Корпус
2
Этаж
3 из 12
S общ.
34.72 м²
S кух.
15 м²
Отделка
Подчистовая
Тип
Новостройка
Стоимость
Планировка
планировка, фото №1
планировка, фото №1
Корпус
2
Этаж
10 из 12
S общ.
34.72 м²
S кух.
15 м²
Отделка
Подчистовая
Тип
Новостройка
Стоимость
Планировка
планировка, фото №1
планировка, фото №1
Корпус
2
Этаж
12 из 12
S общ.
34.72 м²
S кух.
15 м²
Отделка
Подчистовая
Тип
Новостройка
Стоимость
Планировка
планировка, фото №1
планировка, фото №1
Корпус
2
Этаж
5 из 12
S общ.
37.94 м²
S кух.
19.08 м²
Отделка
Подчистовая
Тип
Новостройка
Стоимость
Планировка
планировка, фото №1
планировка, фото №1
Корпус
2
Этаж
3 из 12
S общ.
37.94 м²
S кух.
19.08 м²
Отделка
Подчистовая
Тип
Новостройка
Стоимость
Планировка
планировка, фото №1
планировка, фото №1
Корпус
2
Этаж
8 из 12
S общ.
38.49 м²
S кух.
15.03 м²
Отделка
Подчистовая
Тип
Новостройка
Стоимость
Планировка
планировка, фото №1
планировка, фото №1
Корпус
2
Этаж
12 из 12
S общ.
38.49 м²
S кух.
15.03 м²
Отделка
Подчистовая
Тип
Новостройка
Стоимость
Планировка
планировка, фото №1
планировка, фото №1
Корпус
2
Этаж
10 из 12
S общ.
38.49 м²
S кух.
15.03 м²
Отделка
Подчистовая
Тип
Новостройка
Стоимость

Описание

Само название ЛАВрики делает акцент на любви, любви к своему дому, семье, друзьям и соседям. Датская философия и стиль жизнь хюгге легли в основу концепции комплекса, где вы почувствуете уют и защищенность.

Полис ЛАВрики спроектирован в модном стиле скандинавского минимализма и отличается сдержанными цветовыми решениями. Хорошая естественная освещенность 12-этажного жилого квартала позволяет создать более уютную, добрососедскую атмосферу.

Жилой квартал строится в западной части Мурино, современном благоустроенном пригороде Петербурга, в живописном месте, неподалеку от реки Охта. Ближайшая станция метро – Девяткино, железнодорожная станция – Лаврики. Удачная локация позволяет за разумное время добраться от Полис ЛАВрики и до исторического центра города, и в наиболее популярные места загородного отдыха, такиекак, Охта-парк, Северный склон, Зубровник, озеро Хеппоярви и Кавголовское озеро.

Новый жилой квартал Полис ЛАВрики объединяет шесть домов, детский сад и школу. Корпуса образуют дворы закрытой формы с оборудованным пространством для спорта и отдыха.

Местоположение

Ход строительства

ЖК «Полис ЛАВрики»

Ипотека

Банк
Ставка в год
Первый взнос
Срок кредита
Максимальная сумма
Банк
Ставка в год
от 0.1%
Первый взнос
от 10%
Срок кредита
до 30 лет
Максимальная сумма
от 60 000 000 ₽
Банк
Ставка в год
от 2.95%
Первый взнос
от 15%
Срок кредита
до 25 лет
Максимальная сумма
от 30 000 000 ₽
Банк
Ставка в год
от 3.99%
Первый взнос
от 10%
Срок кредита
до 25 лет
Максимальная сумма
от 30 000 000 ₽
Банк
Ставка в год
от 4.35%
Первый взнос
от 10%
Срок кредита
до 30 лет
Максимальная сумма
от 30 000 000 ₽
Банк
Ставка в год
от 4.4%
Первый взнос
от 10%
Срок кредита
до 30 лет
Максимальная сумма
от 50 000 000 ₽
Банк
Ставка в год
от 4.5%
Первый взнос
от 15%
Срок кредита
до 30 лет
Максимальная сумма
от 60 000 000 ₽
Банк
Ставка в год
от 4.59%
Первый взнос
от 10%
Срок кредита
до 30 лет
Максимальная сумма
от 26 000 000 ₽
Банк
Ставка в год
от 4.6%
Первый взнос
от 0%
Срок кредита
до 30 лет
Максимальная сумма
от 20 000 000 ₽
Банк
Ставка в год
от 4.7%
Первый взнос
от 15%
Срок кредита
до 30 лет
Максимальная сумма
от 70 000 000 ₽
Банк
Ставка в год
от 4.9%
Первый взнос
от 10%
Срок кредита
до 30 лет
Максимальная сумма
от 18 000 000 ₽
Банк
Ставка в год
от 4.99%
Первый взнос
от 15%
Срок кредита
до 30 лет
Максимальная сумма
от 30 000 000 ₽
Банк
Ставка в год
от 5%
Первый взнос
от 10%
Срок кредита
до 30 лет
Максимальная сумма
от 50 000 000 ₽
Банк
Ставка в год
от 5%
Первый взнос
от 20%
Срок кредита
до 30 лет
Максимальная сумма
от 70 000 000 ₽
Банк
Ставка в год
от 5.29%
Первый взнос
от 15%
Срок кредита
до 25 лет
Максимальная сумма
от 25 000 000 ₽
Банк
Ставка в год
от 5.59%
Первый взнос
от 15%
Срок кредита
до 30 лет
Максимальная сумма
от 50 000 000 ₽
Банк
Ставка в год
от 5.9%
Первый взнос
от 20%
Срок кредита
до 30 лет
Максимальная сумма
от 20 000 000 ₽
Банк
Ставка в год
от 6%
Первый взнос
от 15%
Срок кредита
до 25 лет
Максимальная сумма
от 30 000 000 ₽

Калькулятор ипотеки

2 000 000
15
200 000
8,9
Ежемесячный платеж
18 150
Процентная ставка 8.9%

Обьекты от застройщика

Комплекс сдан
ЖК Полис Приморский
от 18 462 888 ₽
Комендантский проспект
15 Минут транспортом
Выбрать квартиру
Комплекс сдан
ЖК Полис Приморский 2
от 13 894 888 ₽
Комендантский проспект
20 Минут транспортом
Выбрать квартиру
Комплекс сдан
ЖК Полис Новоселье
от 4 428 888 ₽
Проспект Ветеранов
25 Минут транспортом
Выбрать квартиру

Похожие жилые комплексы

Комплекс сдан
ЖК Ручьи
от 187 500 ₽
Академическая
20 Минут транспортом
Выбрать квартиру
Комплекс сдан
ЖК Экос
от 5 290 000 ₽
Парнас
20 Минут транспортом
Выбрать квартиру
Комплекс сдан
ЖК Монография
от 6 246 765 ₽
Звёздная
20 Минут транспортом
Выбрать квартиру
Комплекс сдан
ЖК Belevsky Club
от 7 980 000 ₽
Ломоносовская
15 Минут пешком
Выбрать квартиру
Нужна помощь в подборе лучших предложений новостроек?
Оставьте заявку, и мы подберем квартиру под ваши требования.
×
Сервис подбора квартиры.
Какие районы Санкт-Петербурга Вас интересуют?
С какой целью Вы планируете приобрести квартиру?
Сколько комнат должно быть в Вашей будущей квартире?
Какой вариант отделки Вам необходим?
Когда Вы хотите заехать?
В какой бюджет хотите уложиться?

Оставьте Ваш контакт и получите подборку квартир.

+7
×
h
Вопрос 21
Вопрос 22
Вопрос 23

Оставьте Ваш контакт и получите подборку квартир без риска столкнуться с мошенничеством и недостроем.

+7
×
Сервис подбора квартиры.
Какие районы Санкт-Петербурга Вас интересуют?
С какой целью Вы планируете приобрести квартиру?
Сколько комнат должно быть в Вашей будущей квартире?
Какой вариант отделки Вам необходим?
Когда Вы хотите заехать?
В какой бюджет хотите уложиться?

Оставьте Ваш контакт и получите подборку квартир.

+7
×
Сервис подбора квартиры.
Какие районы Санкт-Петербурга Вас интересуют?
С какой целью Вы планируете приобрести квартиру?
Сколько комнат должно быть в Вашей будущей квартире?
Какой вариант отделки Вам необходим?
Когда Вы хотите заехать?
В какой бюджет хотите уложиться?
В какой бюджет хотите уложиться?
В какой бюджет хотите уложиться?
В какой бюджет хотите уложиться?
В какой бюджет хотите уложиться?

Оставьте Ваш контакт и получите подборку квартир.

+7